
Emergency Protection& Escape Route Mapping
Strategic planning and clear evacuation procedures to ensure everyone reaches safety quickly and efficiently.
Protection Measures

Evacuation Planning
Develop comprehensive evacuation plans tailored to your facility layout and occupancy.
- •Facility-specific evacuation procedures
- •Assembly point designations
- •Communication protocols and alerts

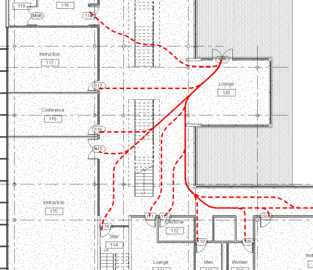
Route Mapping & Signage
Clear, visible escape routes with proper signage and lighting for quick identification.
- •Facility-specific evacuation procedures
- •Assembly point designations
- •Communication protocols and alerts

Drills & Training
Regular evacuation drills and staff training to ensure preparedness and quick response.
- •Facility-specific evacuation procedures
- •Assembly point designations
- •Communication protocols and alerts